Projekt Bäume in die Wüste
Die Landeshauptstadt Wiesbaden setzt im Jahr 2024 Maßnahmen zur Klimaanpassung in stark überhitzten Stadtbereichen um. Stark versiegelte Bereiche mit hohen Temperaturen, geringer Durchlüftung und Frischluftzufuhr sollen in Teilen begrünt und damit aufgewertet werden.
So verbessern sich das Mikroklima und die Aufenthaltsqualität für Bürgerinnen und Bürger. Ein weiterer Vorteil ist, dass durch die zusätzlichen Pflanzen eine Vernetzung mit den umliegenden Grünflächen entsteht und somit die biologische Vielfalt gezielt gefördert wird.
Das Projekt wird vom Förderprogramm des Bundes "Anpassung urbaner Räume an den Klimawandel" aufgrund eines Beschlusses des Deutschen Bundestages durch die Bundesrepublik Deutschland unterstützt.
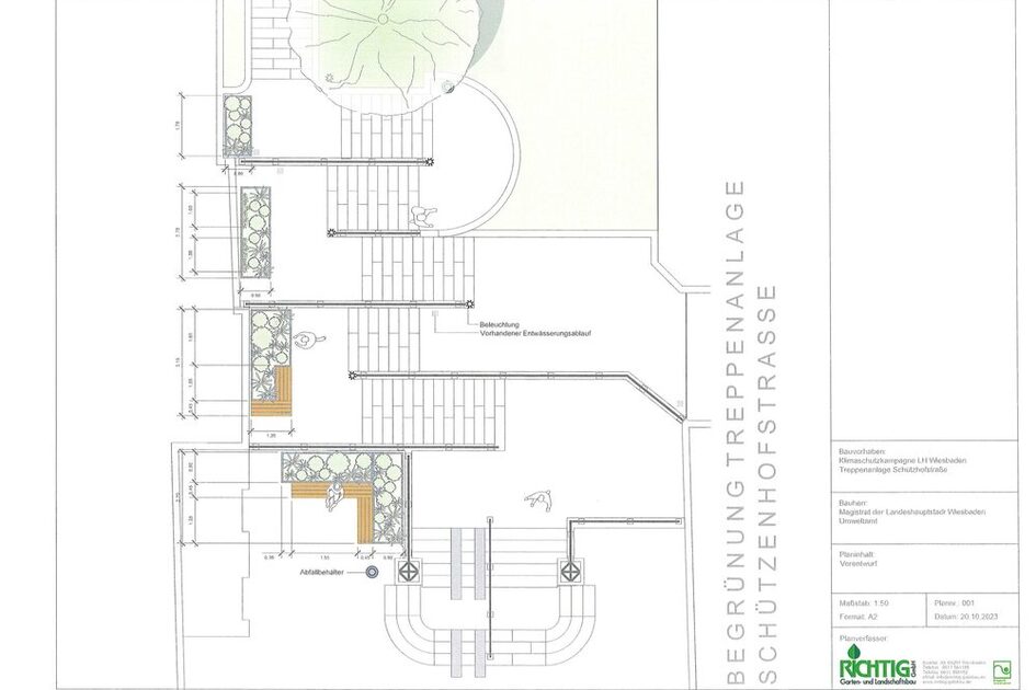
Teilprojekt Begrünung Schützenhoftreppe
Die ersten Teilprojekte sind die Begrünung der Schützenhoftreppe sowie Baumpflanzungen auf dem Bahnhofsvorplatz. An der Schützenhoftreppe werden vier Pflanzkübel mit Sträuchern aufgestellt, die gut an trockene Standorte angepasst sind und heimischen Insekten einen Lebensraum bieten. Sitzbänke laden zum Verweilen ein (Entwurf siehe "Weitere Informationen").
Auf dem Bahnhofsvorplatz sind in zwei großen Pflanzinseln mit Sitzmöglichkeiten je ein großkroniger Baum gepflanzt. Dabei sollen hitze- und trockenheitsverträgliche Baum- und Pflanzenarten verwendet werden.
Klimafunktionskarte zeigt überwärmte Flächen
Die vom Umweltamt der Stadt Wiesbaden erzeugte Klimafunktionskarte (2017) weist die Projektstandorte als höchst intensives innerstädtisches Überwärmungsgebiet mit eingeschränktem Luftaustausch aus. Der sehr hohe Versiegelungsgrad (> 90 Prozent) mit geringem Luftaustausch führt hier in den Sommermonaten tagsüber zu intensiven Überwärmungen und nachts zu sehr verzögerten und nur geringen Abkühlungen. Luftleit- und Ventilationsbahnen, die kältere Luftmassen aus dem ländlichen Umfeld in die Innenstadt transportieren könnten, sind durch die dichte Bebauung gestört.
Das vom Hessischen Landesamt für Naturschutz, Umwelt und Geologie (HLNUG) durchgeführte Projekt KLIMPRAX (Klimawandel in der Praxis, 2017) bestätigt diese Einschätzung. Die KLIMPRAX-Ergebnisse sagen aus, dass bis 2060 mit einer Verdopplung der heißen Tage und Tropennächte zu rechnen ist. Der vollständige Ergebnisbericht ist über den Link am Seitenende einsehbar. Aufgrund der hohen Bevölkerungsdichte sowie dem großen Anteil an hochaltrigen Menschen in der Innenstadt, kommt es zu einer deutlichen Betroffenheit und Belastung der Bevölkerung an den ausgewählten Standorten.
Die Klimafunktionskarte, sowie weitere Kartenwerke zum Thema Stadtklima stehen öffentlich zugänglich unter dem städtischen Geoportal zur Verfügung (siehe unten). Hier sind die Themen Klimabewertung, bioklimatische Belastung, Empfindlichkeit und Betroffenheit der Bevölkerung einsehbar sowie die Anzahl an heißen Tagen, Sommertagen und Tropennächsten in der Vergangenheit und in der Zukunft.
In der aktuellen Klimaanalysekarte der Stadt (2022) zeigen sich die Bereiche des Bahnhofsvorplatzes und Schützenhoftreppe ebenfalls als stark überwärmt. Es handelt sich um ausgeprägte Wärmeinseln mit hoher Belastung, die durch eine starke Verdichtung mit wenig Vegetationsanteil und fehlender Belüftung entstehen.
Sponsoren
Weitere Informationen
Kontakt
Umweltamt
Anschrift
65189 Wiesbaden
Postanschrift
65029 Wiesbaden
Anreise
Hinweise zum ÖPNV
Haltestelle Statistisches Bundesamt; Buslinien 16, 22, 27, 28, 37, 45, X26, x72, 262
Telefon
Angaben zur Barrierefreiheit
- Ein barrierefreier Zugang ist vorhanden
- Das WC ist barrierefrei zu erreichen







